×
MasterStroke logo

Architect | Urban Designers | Interior Designers

HOME ABOUT US SERVICES PORTFOLIO CLIENTS CONTACT US

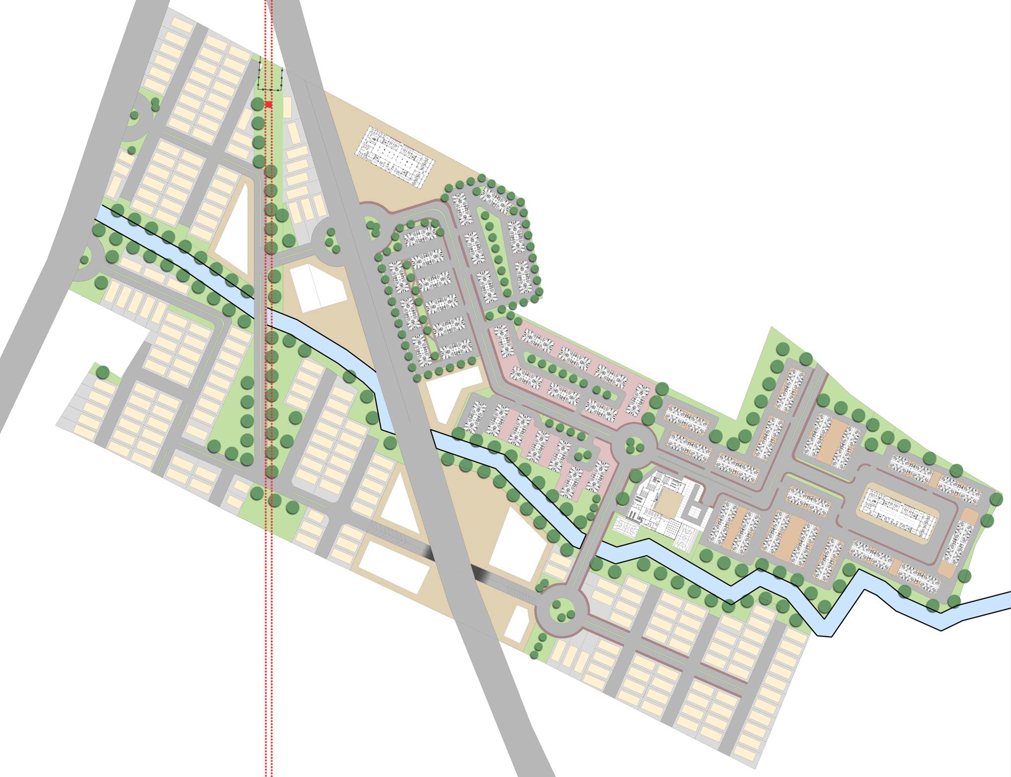
ULV Residential Township at Koregaon Bhima

Urban Designing

MasterStroke logo